|
||||||
| 住所 | 敷金 礼金 |
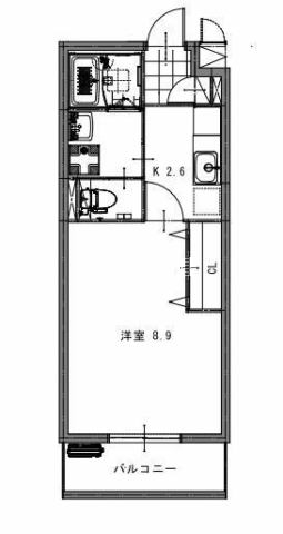
間取り 面積 |
タイプ 構造 |
入居時期 | 築年月 | 駐車場 |
|---|---|---|---|---|---|---|
| 宮崎市祗園 | 0ヶ月 0ヶ月 |
1K 28.63m2 |
マンション 鉄筋コンクリート造 |
即時 | 2022/03 | 空有 ¥5,500 |
インターネット無料+IOT対応!
エアコン1基に照明器具付!
その他設備も充実しております。
| 物件番号 | 15290 | ||
|---|---|---|---|
| 物件名 | QUALIOR | 号室 | 403 |
| 地区 | 下北方・神宮・霧島・祇園 | 住所 | 宮崎市祗園 |
| 建物構造 | 鉄筋コンクリート造 | タイプ | マンション |
| 階/階建 | 4階/5階建 | 向き | 南 |
| 賃料 | ¥55,000 | 共益費 |
¥3,550 |
| 駐車場料金 | ¥5,500 | 駐車場在否 | 空有 |
| 敷金 | 0ヶ月 | 礼金 | 0ヶ月 |
| 間取り | 1K | 間取詳細 | 洋8.9 K2.6 |
| 西暦築年数 | 2022/03 | 面積 | 28.63m2 |
| 契約期間 | 2年 | 火災保険 | 要加入 |
| バス停最寄施設 | 下北方まで 徒歩1分 | 仲介手数料 | 1.1ヶ月 |
| 現況 | 空予定 | 引渡時期 | 即時 |
| 学区 | 小学校区:宮崎市立西池小学校 中学校区:宮崎市立宮崎西中学校 |
||
| 特色 | バストイレ別、室内洗濯機置場、給湯シャワー、エアコン、収納、洋室、オートロック、TVインターホン、都市ガス、追炊バス、バルコニー、エレベータ、シャンプードレッサー、ウォシュレット、インターネット対応、インターネット無料、駐車場、BS、デザイナーズ&ハイグレード、2階以上 | ||
※掲載されている物件データが現状と異なる場合は現状を優先します
![]()
- 株式会社 西日本宅建
- TEL:0985-28-3344
- FAX:0985-28-3345
- >>関連の地域・地区から検索
- 物件一覧 -- 宮崎市東部 下北方・神宮・霧島・祇園 -- 間取一覧 -- 写真一覧




















