|
||||||
| 住所 | 敷金 礼金 |
間取り 面積 |
タイプ 構造 |
入居時期 | 築年月 | 駐車場 |
|---|---|---|---|---|---|---|
| 宮崎市江平中町 | 1.5ヶ月 0ヶ月 |
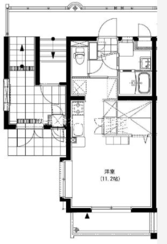
1R+ロフト 30.42m2 |
マンション 鉄筋コンクリート造 |
令和08年01月中旬 | 2019/09 | 空有 ¥7,700 |
江平交差点近くのワンルームマンションです☆
利便性良好で、一人暮らしにピッタリ!オートロック、宅配ボックスが付いています!
| 物件番号 | 15000 | ||
|---|---|---|---|
| 物件名 | GRACE G-life | 号室 | 203 |
| 地区 | 清水・江平 | 住所 | 宮崎市江平中町 |
| 建物構造 | 鉄筋コンクリート造 | タイプ | マンション |
| 階/階建 | 2階/3階建 | 向き | 南 |
| 賃料 | ¥50,000 | 共益費 |
- |
| 駐車場料金 | ¥7,700 | 駐車場在否 | 空有 |
| 敷金 | 1.5ヶ月 | 礼金 | 0ヶ月 |
| 間取り | 1R+ロフト | 間取詳細 | 洋室11.2 ロフト2.3 |
| 西暦築年数 | 2019/09 | 面積 | 30.42m2 |
| 契約期間 | 2年 | 火災保険 | 要加入 |
| バス停最寄施設 | 宮崎駅まで 徒歩17分 | 仲介手数料 | 1.1ヶ月 |
| 現況 | 空予定 | 引渡時期 | 令和08年01月中旬 |
| 学区 | 小学校区:宮崎市立江平小学校 350m 中学校区:宮崎市立宮崎東中学校 850m |
||
| 特色 | 1階、2階以上、角部屋、バストイレ別、室内洗濯機置場、給湯シャワー、エアコン、収納、洋室、バルコニー、オートロック、TVインターホン、24時間換気システム、お湯張りオートストップ、追炊バス、都市ガス、洗面化粧台、ウォシュレット、インターネット対応、駐車場、更新料無し | ||
※掲載されている物件データが現状と異なる場合は現状を優先します
![]()
- 株式会社 西日本宅建
- TEL:0985-28-3344
- FAX:0985-28-3345
- >>関連の地域・地区から検索
- 物件一覧 -- 宮崎市中心部 清水・江平 -- 間取一覧 -- 写真一覧
- >>カテゴリから検索
- ユーミーマンション

























